
Выгодная цена.
Отличное предложение, в связи с переездом собственник продаёт дом. на участке в 3,5 соток ЛПХ, дом с готовым ремонтом и мебелью, в полноценном газифицированном посёлке (не дачи). Все дороги, чистятся администрацией.
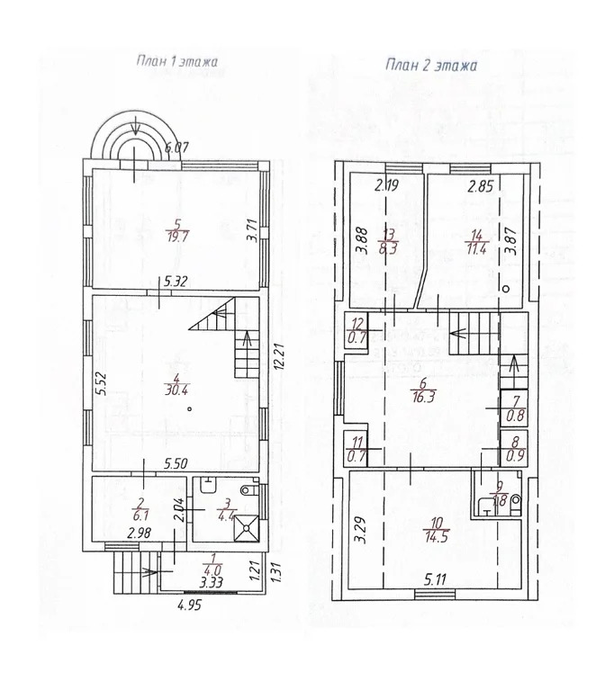
Облицованный кирпичом утеплённый брусовой дом, сделан очень добротно. Приятный ремонт. Дом небольшой, 140 м2. в нём тепло и уютно. Есть 4 раздельные комнаты, очень приятная и комфортная кухня-гостиная 30 м2, и 2 сан. узла в доме. Все коммуникации в отличном состоянии, всё работает. Дом находится на поселковой земле, Категории земель: СНТ.
Фундамент сваи из бетона и ленточный каркас., тёплые стены - брус толщина 150 мм., утеплитель с внешней стороны (мин. вата) с двух сторон, облицован кирпичом. Красивая и надёжная крыша - ондулин кровля.
Все коммуникации в готовом рабочем состоянии:
- Вода городская (заведена в дом)
- Электроэнергия 8 кВт. (можно увеличить до 15 кВт.)
- Септик (ёмкость Евролос)
- Газ, (подключено и работает).
Во дворе сделан мангальная зона и хозблок (20м2), подведено электричество. На участок имеются садовые насаждения (вишня, слива, крыжовник и, тд.)
Развитая инфраструктура, недалеко городская застройка, в 10 мин. пешком есть школа, детский сад, магазины, торговые центры, фитнес, кафе и т.д. Отличная доступность: 12 минут до МКАД на машине, не далеко от дома автобус до метро
Все документы в порядке, и готовы к сделке. ДКП более 10 лет. Нет никаких обременений и долгов. Под ипотеку, материнский капитал, опеку, и сертификаты подходит. Помощь Агентства в одобрении ипотеки.
13000000 руб. | 196946 $ | 172593 €